Porzione di bifamiliare in vendita

Rende, Via Alessandro Magno - Dattoli
€ 162.000
Prezzo aggiornato
4 locali 4 locali
104 Mq 104 Mq
2 bagni 2 bagni

Porzione di bifamiliare in vendita

Rende, Via Alessandro Magno - Dattoli

Descrizione annuncio

Contrada Dattoli- Via Alessandro Magno

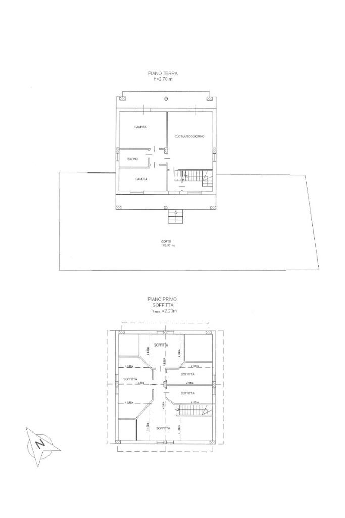
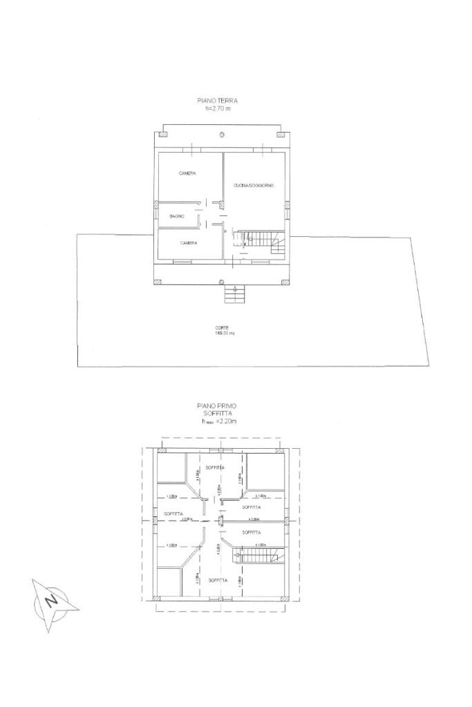
Proponiamo in vendita, in contrada Dattoli, porzione di bifamiliare di 104 mq ca con giardino,costruita nel 2007.

Lo spazio interno è distribuito su due livelli, entrando in casa infatti attraverso un piccolo disimpegno abbiamo un doppio accesso ai due rispettivi livelli abitativi.

Entrando dal primo ingresso troviamo una comoda e spaziosa zona giorno con cucina a vista e balcone con vista panoramica. Camera da letto matrimoniale con balcone, seconda camera e bagno finestrato con doccia.

Al secondo livello troviamo un comodo ambiente unico attualmente adibito a zona giorno, cucinotto, camera da letto e bagno. Tutti gli ambienti sono dotati di lucernario.

La posizione in una zona residenziale assicura un contesto tranquillo, ideale per chi cerca un rifugio lontano dal caos cittadino. La vicinanza ai servizi essenziali e alle principali vie di comunicazione rende questa proprietà una scelta pratica per famiglie e professionisti.

L'immobile rappresenta inoltre un'opportunità interessante per chi desidera investire in una soluzione abitativa moderna e ben collegata.

Mostra tutto

Nelle vicinanze

Trasporto pubblico Trasporto pubblico
Castiglione Cosentino
Castiglione Cosentino
2,6 Km
4
4
750 m
Poliambulatorio
Poliambulatorio
2,3 Km
Ricariche auto elettriche Ricariche auto elettriche
Rende Unical | EnelX
1,7 Km
Rende Marconi | EnelX
2,4 Km
Rende Edison | EnelX
2,5 Km
Rende Parigi | EnelX
2,7 Km
Rende Cook | EnelX
2,9 Km
Scuole Scuole
Scuole
410 m
TechNest
410 m
Cubo 46C
540 m
Cubo 45D
550 m
Cubo 45C
560 m
Farmacia Farmacia
Farmacia Peluso
1,5 Km
Ospedali Ospedali
ASL
2,2 Km
Supermercati Supermercati
Vivo
1,0 Km
Supermercati
2,7 Km
Interspar
2,8 Km
Negozi Negozi
Punto Spesa
1,7 Km
Bar Bar
Bar Trieste
2,5 Km
Ristoranti Ristoranti
Le Casette di Zio Rocco
520 m
Fuori Corso
920 m
Mensa Martensson
990 m
Arcà
1,1 Km
Mensa Centro Residenziale
1,7 Km
Mostra tutto

Caratteristiche

Rif.:
61138750
Piano:
1 di 2 (Piano basso)
Posti auto:
1
Balconi:
1
Terrazzi:
1
Camere da letto:
3
Mostra tutto
Prezzo Prezzo
€ 162.000
Rata mutuo Rata mutuo
€ 763 / mese
Spese annue Spese annue
€ 0
Proponi il tuo prezzoProponi il tuo prezzo

Classe Energetica

C
C
C
C
C
C
C
C
C
EP globale non rinnovabile:
90.78 kW h/m² anno
EP globale rinnovabile:
0.00 kW h/m² anno
EP invernale del fabbricato:
EP estiva del fabbricato:
Anno di costruzione:
2007
Riscaldamento:
Autonomo
Tipo impianto:
A radiatori
Tipo alimentazione:
Metano

Prezzo ridotto di €1 (8%%)

Ti interessa visionare l'immobile?

Fissa un appuntamento  Fissa un appuntamento

Richiedi informazioni

Clicca su Leggi per aprire l'informativa
* Questi campi sono obbligatori

Calcola il tuo mutuo

Semplice e senza impegno
Anticipo

( % )
Mutuo

( % )

pochi semplici passi

inserisci i tuoi dati
Questionario completato
Grazie per aver richiesto un appuntamento senza impegno con un nostro Consulente del Credito e Assicurativo.

Hai inserito correttamente tutti i dati necessari e a breve riceverai una e-mail con un link da convalidare per inviare i tuoi dati.
Affiliato
Studio Rende Srl
Via Alessandro Volta, 46 87036 Rende (CS)

Il nostro staff


  • Stefano Leone
    Affiliato

  • Emilia Cuconato
    Coordinatrice

  • Emilio Cribari
    Collaboratore

  • Alessia Coscarelli
    Collaboratrice

  • Giuseppe Costabile
    Responsabile

  • Linda Lo Passo
    Coordinatrice

  • Thomas Secondo Palopoli
    Collaboratore

  • Ivan Zuccarelli
    Collaboratore
Via Alessandro Volta, 46 87036 Rende (CS)
Zona: Quattromiglia-Arcavacata-Rocchi
Mostra su mappa
Orari: Dal Lunedì al Venerdì 09:00-12:50 / 15:00-20:00 Sabato 09:00-12:50/15:30-18:30 Domenica Chiuso
Affiliato
Studio Rende Srl
Via Alessandro Volta, 46 87036 Rende (CS)

2026 Tecnocasa Franchising S.p.A. - P. IVA 08365160152 - Via Monte Bianco 60/A 20089 Rozzano (MI). Ogni agenzia ha un proprio titolare ed è autonoma. Privacy policy | Policy utilizzo | Cookie policy