Trilocale in vendita

Rende, Via Giuseppe Verdi - Quattromiglia
€ 186.000
3 locali 3 locali
80 Mq 80 Mq
1 bagno 1 bagno

Trilocale in vendita

Rende, Via Giuseppe Verdi - Quattromiglia

Descrizione annuncio

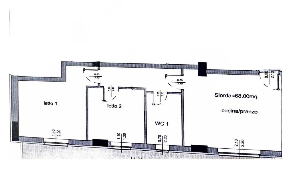
In una delle zone più centrali e servite di Rende, proponiamo in vendita elegante trilocale di nuova costruzione situato al primo piano di un moderno stabile.

L’appartamento, di circa 80 mq, è progettato per garantire comfort e funzionalità degli spazi e si compone di:
• luminosa zona giorno con soggiorno e cucina,
• due camere da letto,
• bagno,
• comodi spazi ben distribuiti ideali per famiglie o giovani coppie.

Il fabbricato è progettato in Classe Energetica A e dispone di impianto di riscaldamento esclusivamente elettrico, supportato da impianto fotovoltaico che garantisce una produzione di circa 2 kWh per appartamento. Il comfort climatico è assicurato da pompa di calore e termoconvettori caldo/freddo, ideali per un’efficiente gestione dei consumi durante tutto l’anno. Gli infissi in PVC con triplo vetrocamera contribuiscono a un elevato isolamento termico e acustico, mentre le pavimentazioni in gres porcellanato conferiscono un tocco moderno ed elegante agli ambienti. Completano le dotazioni persiane/serrande e porta blindata, a garanzia di sicurezza e qualità costruttiva.

La consegna è prevista per giugno 2026.

La soluzione è ideale per chi desidera una casa nuova, efficiente e centrale, perfetta sia come abitazione principale sia come investimento.

Mostra tutto

Nelle vicinanze

Trasporto pubblico Trasporto pubblico
Castiglione Cosentino
Castiglione Cosentino
1,3 Km
Q8
Q8
70 m
C4 Arredamenti
C4 Arredamenti
150 m
Ricariche auto elettriche Ricariche auto elettriche
Rende Rossini | EnelX
140 m
LIDL Rende
230 m
EnelX EVA+ Conad Rende
480 m
Rende Parigi | EnelX
780 m
Rende Bilotta | EnelX
890 m
Scuole Scuole
Liceo classico statale "Gioacchino di Fiore"
420 m
Scuole
530 m
Unical ex-cud
560 m
Ex-Scuola Stancati
1,2 Km
Istituto Tecnico Commerciale Statale "V. Cosentino"
1,3 Km
Farmacia Farmacia
Parafarmacia Conad
490 m
Ospedali Ospedali
ASL
1,6 Km
Supermercati Supermercati
Supermercati
420 m
Conad
480 m
Capitano Moda
540 m
Pronto Hobby
600 m
MD
1,5 Km
Negozi Negozi
IP API Group
850 m
Negozi
2,2 Km
Bar Bar
Nocturne Place
1,1 Km
Mary Gelateria
1,1 Km
Mood Social Club
1,2 Km
Dolci & Capricci
1,6 Km
Bistot De Giuseppe
2,3 Km
Ristoranti Ristoranti
Du Spaghi
210 m
Dunya
270 m
Papero Verde
490 m
Griglieria del Popolo
640 m
Autogrill
720 m
Mostra tutto

Caratteristiche

Rif.:
61158806
Piano:
1 di 7 con ascensore (Piano basso)
Posti auto:
1
Terrazzi:
1
Camere da letto:
2
Arredamento:
Assente
Mostra tutto
Prezzo Prezzo
€ 186.000
Rata mutuo Rata mutuo
€ 876 / mese
Spese annue Spese annue
€ 0
Proponi il tuo prezzoProponi il tuo prezzo

Classe Energetica

A4
A4
A4
A4
A4
A4
A4
A4
A4
EP invernale del fabbricato:
EP estiva del fabbricato:
Anno di costruzione:
2026
Riscaldamento:
Autonomo
Tipo impianto:
Ad aria
Tipo alimentazione:
Aria

Ti interessa visionare l'immobile?

Fissa un appuntamento  Fissa un appuntamento

Richiedi informazioni

Clicca su Leggi per aprire l'informativa
* Questi campi sono obbligatori

Calcola il tuo mutuo

Semplice e senza impegno
Anticipo

( % )
Mutuo

( % )

pochi semplici passi

inserisci i tuoi dati
Questionario completato
Grazie per aver richiesto un appuntamento senza impegno con un nostro Consulente del Credito e Assicurativo.

Hai inserito correttamente tutti i dati necessari e a breve riceverai una e-mail con un link da convalidare per inviare i tuoi dati.
Affiliato
Studio Rende Srl
Via Alessandro Volta, 46 87036 Rende (CS)

Il nostro staff


  • Stefano Leone
    Affiliato

  • Emilia Cuconato
    Coordinatrice

  • Emilio Cribari
    Collaboratore

  • Alessia Coscarelli
    Collaboratrice

  • Giuseppe Costabile
    Responsabile

  • Linda Lo Passo
    Coordinatrice

  • Thomas Secondo Palopoli
    Collaboratore

  • Ivan Zuccarelli
    Collaboratore
Via Alessandro Volta, 46 87036 Rende (CS)
Zona: Quattromiglia-Arcavacata-Rocchi
Mostra su mappa
Orari: Dal Lunedì al Venerdì 09:00-12:50 / 15:00-20:00 Sabato 09:00-12:50/15:30-18:30 Domenica Chiuso
Affiliato
Studio Rende Srl
Via Alessandro Volta, 46 87036 Rende (CS)

2026 Tecnocasa Franchising S.p.A. - P. IVA 08365160152 - Via Monte Bianco 60/A 20089 Rozzano (MI). Ogni agenzia ha un proprio titolare ed è autonoma. Privacy policy | Policy utilizzo | Cookie policy